
赫斯特在伦敦北部的豪宅
达明安·赫斯特(Damien Hirst)最近好事不断。前不久他的新港街画廊揭幕,向公众展示他那令人乍舌的私人藏品,接着他在伦敦弗里兹艺博会以120万美元的价格出售了其中一件最昂贵的艺术品。如今,这位英国年轻艺术家又打赢了一场规划战,获得许可在他伦敦的住所地下建造一间巨大的艺术品收藏室以放置他那不断增加的艺术藏品。
《每日邮报》称,当赫斯特第一次向有关机构递交计划书,申请在他位于伦敦北部那价值6100万美元的豪宅地下挖掘地下室的时候,官员们的表态是“无法接受”,因为这个工程需要砍掉周边大量的树木。
然而赫斯特对这个计划将造成的环境影响并没有过分担心,相反,他想尽各种办法,最终于当地时间20日在威斯敏斯特市议会的一个集会上获得了批准。

赫斯特豪宅的翻新计划
2014年,赫斯特购买了这栋位于摄政公园对面的“1级”房产,成为该宏伟庄严的建筑物45年来的首位主人。这栋宅邸被视为英国建筑师约翰·纳什(John Nash)的代表作之一,但是它已经年久失修了。所以年届50的赫斯特立马开工,把原本摄政时期风格的宅邸摇身变成现代气息的居住天堂。
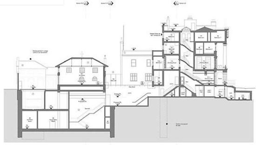
赫斯特的艺术收藏令人瞪目结舌,目前藏品数量已超过3,000件,并且还在不断增加,这个150英尺长的地下室就是专门用来存放这些藏品的。赫斯特的藏品中不乏名家之作,例如有毕加索(Pablo Picasso),安迪·沃霍尔(Andy Warhol),弗朗西斯·培根(Francis Bacon),杰夫·昆斯(Jeff Koons),班克斯(Banksy)和理查德·普林斯(Richard Prince)的作品。此外,还有大量作品是出自和赫斯特同辈的英国年轻艺术家之手,例如:沙拉·卢卡斯(Sarah Lucas),翠西·艾敏(Tracey Emin),马特·克里肖(Mat Collishaw)和安格斯·菲赫斯特(Angus Fairhurst)。另外的一些艺术家则让人料想不到,他们包括阿尔佩托·贾科梅蒂(Alberto Giacometti),马里奥·莫兹(Mario Merz),库尔德·施威特(Kurt Schwitters)和弗兰克·奥尔巴赫(Frank Auerbach)等等。
赫斯特的博物馆 -——新港街画廊于10月初开幕,赫斯特开展的目的一是为了让他的艺术品有栖身之所,二就是为了和公众分享。但是画廊一次只能承办一个展览,且为期超过半年,所以赫斯特确实需要更多的房产来储藏他的艺术珍品。赫斯特的伦敦宅邸坐落于一块21,780平方英尺的土地上,拥有19间卧室,这个巨大的地下室或许是他为这栋房子设计的大型项目之一,但绝对不会是唯一。
《每日邮报》报道称,负责房子翻新的珀塞尔(Purcell)建筑公司将对房子的里外都进行翻新,最终目的是要把这栋宅邸打造成为这个富人区最宏伟,昂贵和受人欢迎的建筑物之一。