政府加快發展公營房屋,房屋署最新就東涌第103區的政府土地,向城規會申請興建2018伙公營房屋,預計最快2026年落成。
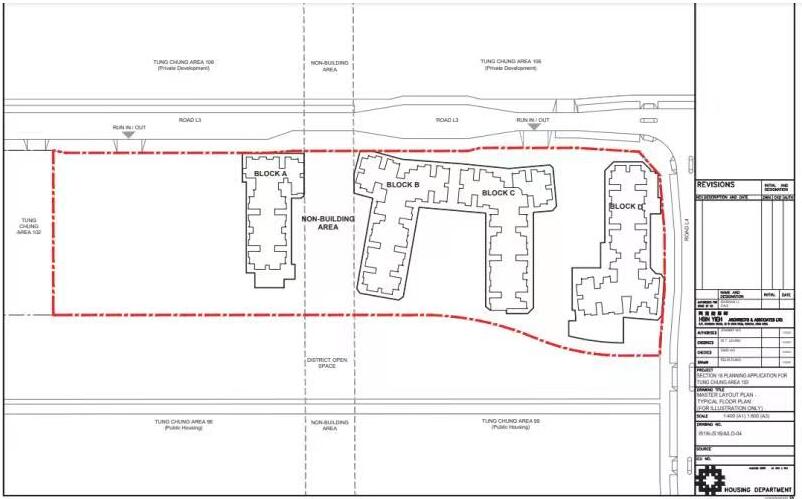
第103區用地位處東涌填海地,地盤面積約18.6萬平方呎。房屋署計劃將地積比率由原有的5.4倍,增至5.9倍。建築物高度限制由110米(主水平基準上,下同)放寬至125米。落成後,會有4幢樓高介乎16至40層(包括2層平台)的住宅,共提供2018伙公營房屋,總樓面面積約109.87萬平方呎。

根據申請文件,項目分A、B、C及D座發展,平均單位面積約506平方呎,間隔以1至2房為主,最快於2026或2027年落成,預計可容納5651人。
房屋署指出,是次的改劃符合政府發展珍貴土地資源的政策,並與周邊發展相容,而且發展對空氣通風、環境、交通、視覺影響等方面並沒有構成難以克服的困難。

