長和(001)持有的聯合船塢集團向城規會提出修訂大綱圖,要求將青衣島西的香港聯合船塢連同其北面政府閒置用地,一併改變用途,作為大型綜合私人住宅及公共房屋發展,預計一共可以提供15075個住宅單位。若申請成功,日後有望成為「黃埔花園2.0」。
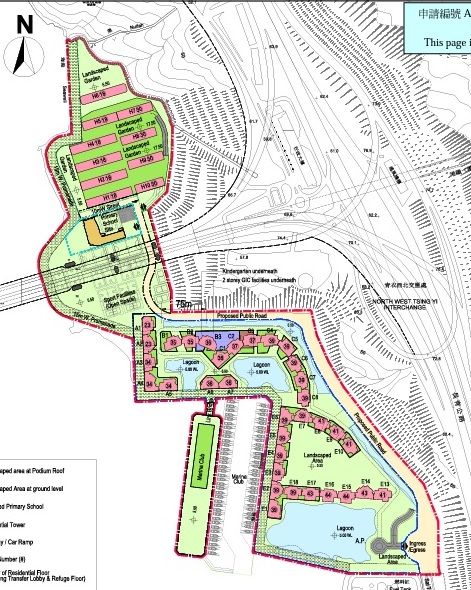
聯合船塢建議,把青衣西部、位於西草灣路的香港聯合船塢,連同其以北已經閒置多年的政府土地,一併發展公私營住宅項目。整個項目總佔地逾19.9公頃。申請人建議分為南面和北面地盤,南面地盤屬於聯合船塢所在地,擬興建私人住宅及遊艇俱樂部,涉及樓面面積近57萬平方米,包括約34幢27層至48層(包括地庫)住宅大樓,能提供約10371個私人住宅單位,並會設有商業、幼稚園和社區設施。

聯合船塢集團向城規會提出修訂規劃圖,擬發展成公私營住宅項目。
公私營合作重建潛力大
至於北面的政府土地,則會用於興建公營房屋以及一所小學等,估計可以興建約10幢22層至34層住宅大樓,提供約4704個單位。這部分項目尚包括延伸和擴闊西草灣路,亦會有一條長約1.4公里、15米闊的海濱長廊,由私人發展部分延伸至公營房屋部分,讓公眾使用。
聯合船塢現有工業用地,欠缺行車通道連接毗連政府土地。透過重建聯合船塢用地,可提供連接道路直達閒置政府土地,有望產生協同效應,提供契機進行綜合私人住宅及公共房屋發展計劃。
望為解決土地問題作貢獻
聯合船塢表示,香港住屋需求長期未獲滿足,整個計劃屬中長期規劃,冀為解決土地和房屋問題作貢獻。在香港土地資源有限的情況下,可透過長遠規劃,善用現有大型工業用地及閒置政府土地。
聯合船塢集團於1972年由黃埔船塢與太古船塢及機器合併而成立。長和於2021年8月向太古(019)收購所持的聯合船塢集團50%權益後由長和全資擁有。

